野洲市大篠原 中古戸建て

999万円

滋賀県野洲市大篠原

東海道本線「篠原」駅徒歩23分

価格
999万円
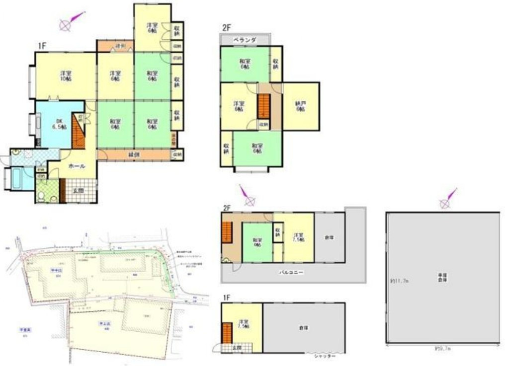
間取り/建物面積
4LDK/95.22㎡
所在地
滋賀県野洲市大篠原
築年
1993年12月(築32年)
駐車
交通

東海道本線篠原」駅 徒歩23分

野洲市大篠原 中古戸建ての基本情報

物件名
野洲市大篠原 中古戸建て
価格
999万円
建物面積
95.22㎡
土地面積
50.53坪(167.07㎡)
築年月
1993年12月(築32年)
総戸数
-
所在地
滋賀県野洲市大篠原
交通

東海道本線篠原」駅 徒歩23分

野洲市大篠原 中古戸建ての詳細情報

設備条件
  • 閑静な住宅地
設備(その他)
    -
駐車場/月額
有/-
土地権利
所有権
国土法届出
不要
用途地域
-
取引態様
仲介
引渡し
相談

野洲市大篠原 中古戸建てで募集中の物件

  1. 28.80坪 (95.22㎡)

    999万円(34.69万円/坪)

周辺施設

  • ファミリーマート 野洲入町店の画像

    コンビニエンスストア

    ファミリーマート 野洲入町店

    929m(12分)

  • ファミリーマート 野洲大篠原店の画像

    コンビニエンスストア

    ファミリーマート 野洲大篠原店

    1100m(14分)

  • 野洲市立篠原小学校の画像

    小学校

    野洲市立篠原小学校

    1144m(15分)

  • 篠原こども園の画像

    幼稚園

    篠原こども園

    1149m(15分)

  • 近江八幡警察署 篠原駅前警察官駐在所の画像

    警察

    近江八幡警察署 篠原駅前警察官駐在所

    2027m(26分)

  • 近江八幡桐原郵便局の画像

    郵便局

    近江八幡桐原郵便局

    2180m(28分)

  • 平和堂 篠原店の画像

    スーパー

    平和堂 篠原店

    2307m(29分)

  • 篠原公園の画像

    公園

    篠原公園

    2401m(31分)

  • 祇王郵便局の画像

    郵便局

    祇王郵便局

    3115m(39分)

  • 野洲図書館の画像

    図書館

    野洲図書館

    3133m(40分)

  • JAレーク滋賀祇王支店の画像

    銀行

    JAレーク滋賀祇王支店

    3151m(40分)

  • 医療法人白井医院の画像

    総合病院

    医療法人白井医院

    3163m(40分)

  • 野洲市立野洲北中学校の画像

    中学校

    野洲市立野洲北中学校

    3267m(41分)

  • セブンイレブン 野洲永原店の画像

    コンビニエンスストア

    セブンイレブン 野洲永原店

    3431m(43分)

  • 滋賀銀行祇王支店の画像

    銀行

    滋賀銀行祇王支店

    3787m(48分)

  • ウエルシア野洲小篠原店の画像

    ドラッグストア

    ウエルシア野洲小篠原店

    3908m(49分)

  • ドラッグユタカ 近江八幡十王店の画像

    ドラッグストア

    ドラッグユタカ 近江八幡十王店

    3940m(50分)

  • フレンドマート 江頭店の画像

    スーパー

    フレンドマート 江頭店

    4248m(54分)

  • 野洲市総合体育館の画像

    スポーツ施設

    野洲市総合体育館

    4479m(56分)

近隣の物件

  1. 野洲市大畑

    4LDK (105.78㎡)

    4,198万円

  2. 野洲市久野部

    4LDK (87.98㎡)

    3,298万円

  3. 野洲市久野部

    4LDK (91.49㎡)

    3,298万円

  4. 野洲市比留田

    9SDK (187.92㎡)

    1,195万円

よく見られている物件

  1. 守山市吉身6丁目

    3LDK (117.58㎡)

    7,000万円

  2. 守山市今市町

    4LDK (114.82㎡)

    2,299万円

  3. 守山市今宿4丁目

    4LDK (110.13㎡)

    5,298万円

  4. 野洲市比留田

    9SDK (187.92㎡)

    1,195万円

野洲市大篠原 中古戸建て

お気軽にお問い合わせください

LINEからお問い合わせ 無料お問い合わせ

株式会社HOUSE GATE

077-599-1865

9:00~18:00

(休:毎週水曜日)