野洲市五条 中古戸建て

2,180万円

滋賀県野洲市五条

東海道本線「野洲」駅徒歩79分

価格
2,180万円
間取り/建物面積
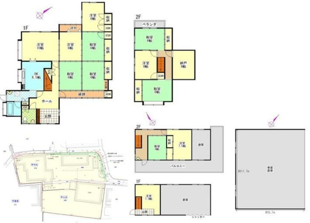
3LDK/86.11㎡
所在地
滋賀県野洲市五条
築年
2016年11月(築9年)
駐車
交通

東海道本線野洲」駅 徒歩79分車15分

野洲市五条 中古戸建ての基本情報

物件名
野洲市五条 中古戸建て
価格
2,180万円
建物面積
86.11㎡
土地面積
39.99坪(132.20㎡)
築年月
2016年11月(築9年)
総戸数
-
所在地
滋賀県野洲市五条
交通

東海道本線野洲」駅 徒歩79分車15分

野洲市五条 中古戸建ての詳細情報

設備条件
  • 駐車2台可
設備(その他)
    -
駐車場/月額
有/-
土地権利
所有権
国土法届出
不要
用途地域
-
取引態様
仲介
引渡し
相談

野洲市五条 中古戸建てで募集中の物件

  1. 26.04坪 (86.11㎡)

    2,180万円(83.72万円/坪)

周辺施設

  • 中主スーパーの画像

    スーパー

    中主スーパー

    480m(6分)

  • 野洲市立中主中学校の画像

    中学校

    野洲市立中主中学校

    667m(9分)

  • 野洲市立中主幼稚園の画像

    幼稚園

    野洲市立中主幼稚園

    858m(11分)

  • JAレーク滋賀 おうみんち 中主店の画像

    スーパー

    JAレーク滋賀 おうみんち 中主店

    897m(12分)

  • ローソン 野洲六条店の画像

    コンビニエンスストア

    ローソン 野洲六条店

    1033m(13分)

  • 南医院の画像

    総合病院

    南医院

    1586m(20分)

  • コメリハード&グリーン中主店の画像

    ホームセンター

    コメリハード&グリーン中主店

    1624m(21分)

  • JAレーク滋賀中主支店の画像

    銀行

    JAレーク滋賀中主支店

    1702m(22分)

  • イオンタウン野洲の画像

    スーパー

    イオンタウン野洲

    1744m(22分)

  • 野洲図書館中主分館の画像

    図書館

    野洲図書館中主分館

    1769m(23分)

  • あやめ保育所よしじ分園の画像

    保育園

    あやめ保育所よしじ分園

    1770m(23分)

  • 中主郵便局の画像

    郵便局

    中主郵便局

    1823m(23分)

  • 滋賀中央信用金庫中主支店の画像

    銀行

    滋賀中央信用金庫中主支店

    1836m(23分)

  • ローソン 中主西河原店の画像

    コンビニエンスストア

    ローソン 中主西河原店

    1865m(24分)

  • 滋賀銀行中主支店の画像

    銀行

    滋賀銀行中主支店

    1908m(24分)

  • 親水公園の画像

    公園

    親水公園

    2104m(27分)

  • ファミリーマート 中主堤店の画像

    コンビニエンスストア

    ファミリーマート 中主堤店

    2124m(27分)

  • 野洲市立中主小学校の画像

    小学校

    野洲市立中主小学校

    2141m(27分)

  • あやめ保育所の画像

    保育園

    あやめ保育所

    2301m(29分)

  • 野洲市総合体育館の画像

    スポーツ施設

    野洲市総合体育館

    4417m(56分)

近隣の物件

  1. 野洲市久野部

    4LDK (91.49㎡)

    3,398万円

  2. 野洲市比留田

    9SDK (187.92㎡)

    1,195万円

  3. 野洲市久野部

    4LDK (87.98㎡)

    3,398万円

  4. 野洲市上屋

    3SLDK (145.74㎡)

    3,980万円

野洲市五条 中古戸建て

お気軽にお問い合わせください

LINEからお問い合わせ 無料お問い合わせ

株式会社HOUSE GATE

077-599-1865

9:00~18:00

(休:毎週水曜日)