守山市今市町 中古戸建て

2,580万円

滋賀県守山市今市町

東海道本線「守山」駅徒歩53分

東海道本線「野洲」駅徒歩62分

東海道本線「栗東」駅徒歩81分

価格
2,580万円
間取り
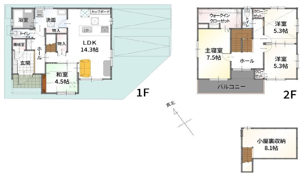
5LDK
土地面積
170.66㎡
所在地
滋賀県守山市今市町
交通

東海道本線守山」駅 徒歩53分

東海道本線野洲」駅 徒歩62分

東海道本線栗東」駅 徒歩81分

建物面積
134.14㎡
築年月
2006年1月(築20年)

物件の特徴

  • バストイレ別

  • 室内洗濯機置場

  • カウンターキッチン

セールスポイント

■ハウスクリーニング済み
■全室6帖以上の5LDK
■使い勝手の良い広々インナーバルコニー
■各階にトイレ・洗面台完備
■南西向きにつき陽当たり良好
■敷地面積ゆったり50坪超え
■駐車2台可(※車種による)

ポイント

システムキッチン IHクッキングヒーター 収納豊富 浴室1坪以上 和室

担当者のコメント

中村 宇尋

【守山市・野洲市の不動産を購入/売却するなら 株式会社HOUSE GATEへ】
お住まいのご購入は、お客様にとって大きな人生の節目となる大切な出来事です。安心・安全な不動産取引を最後まで丁寧にサポートいたします。

基本情報

販売戸数
-
総戸数
-
間取り / 詳細
5LDK
LDK 16.0帖 1室/洋室 8.0帖 1室/和室 6.0帖 1室/洋室 8.0帖 1室/洋室 6.0帖 2室/0.0帖/0.0帖/0.0帖/0.0帖/0.0帖
向き
南西
建物面積(坪数)
134.14㎡(40.57坪)
土地面積(坪数)
170.66㎡(51.62坪)
建ぺい率 /
容積率
70%/200%
築年月
2006年1月(築20年)
駐車場 / 月額
有(屋根有) / 0円
土地権利
所有権
土地
(敷金 / 保証金)
0万円 / 0万円
建物構造
木造 / 2階建
傾斜地部分面積
-
路地状敷地
-
私道負担面積
0.00㎡
セットバック
無 記載なし
高圧線下面積
0.00㎡
施工会社
-
用途地域
無指定
地目 / 地勢
宅地 / -
接道状況
一方(南西 公道 7.0m 間口 12.7m)
国土法届出要否
不要
都市計画
市街化調整区域
総区画数 /
販売区画数
-/-
現況
空家
その他
法令上の制限
-
取引態様
専任媒介
引渡し
即時
リフォーム
    2025年12月
    ◎畳3枚 新調/畳3枚 表替え ◎ハウスクリーニング
取引条件の
有効期限
2026年05月04日

設備条件

設備条件
  • 陽当り良好 / 閑静な住宅地 / 室内洗濯機置場 / フローリング / 公営水道 / 公共下水 / オール電化 / 電気有 / インナーバルコニー / 駐車2台可 / IHクッキングヒーター / コンロ2口以上 / 食器洗い乾燥機 / システムキッチン / カウンターキッチン / コンロ3口 / バス・トイレ別 / 洗面台 / トイレ2ヶ所 / 浴室1坪以上 / ユニットバス / 床下収納 / 収納豊富 / 複層ガラス / ディンプルキー
設備(その他)
    -

その他

物件番号
102619507
管理コード
-
建築確認番号
-
情報更新日
2026年04月20日
次回更新予定日
2026年05月04日
取扱会社
  • 株式会社HOUSE GATE
  • 滋賀県守山市播磨田町3041 リバティハウス1F
  • TEL:077-599-1865
  • 滋賀県知事 (2) 第3794号
  • (公社)滋賀県宅地建物取引業協会
    (公社)全国宅地建物取引業保証協会
    (公社)近畿地区不動産公正取引協議会
備考
※現況有姿取引
※売主の契約不適合責任免責

周辺施設

  • 川中団地第3公園の画像

    公園

    川中団地第3公園

    10m(1分)

  • ローソン 守山荒見町店の画像

    コンビニエンスストア

    ローソン 守山荒見町店

    380m(5分)

  • 守山市立守山北中学校の画像

    中学校

    守山市立守山北中学校

    730m(10分)

  • やまぐち内科医院の画像

    内科

    やまぐち内科医院

    863m(11分)

  • ひだまり保育園守山園の画像

    保育園

    ひだまり保育園守山園

    864m(11分)

  • JAレーク滋賀河西支店の画像

    銀行

    JAレーク滋賀河西支店

    875m(11分)

  • セブンイレブン 守山播磨田町店の画像

    コンビニエンスストア

    セブンイレブン 守山播磨田町店

    911m(12分)

  • 守山市立河西小学校の画像

    小学校

    守山市立河西小学校

    930m(12分)

  • 守山市立河西幼稚園の画像

    幼稚園

    守山市立河西幼稚園

    970m(13分)

  • ロイヤルホームセンター 守山店の画像

    ホームセンター

    ロイヤルホームセンター 守山店

    1080m(14分)

  • LAMU(ラムー) 守山店の画像

    ディスカウントショップ

    LAMU(ラムー) 守山店

    1190m(15分)

  • 滋賀銀行播磨田代理店の画像

    銀行

    滋賀銀行播磨田代理店

    1230m(16分)

  • 守山播磨田郵便局の画像

    郵便局

    守山播磨田郵便局

    1290m(17分)

  • セブンイレブン 守山石田町店の画像

    コンビニエンスストア

    セブンイレブン 守山石田町店

    1354m(17分)

  • フレンドマート 河西店の画像

    スーパー

    フレンドマート 河西店

    1403m(18分)

  • ドラッグユタカ 守山播磨田店の画像

    ドラッグストア

    ドラッグユタカ 守山播磨田店

    1450m(19分)

  • Valor(バロー) 守山小島店の画像

    スーパー

    Valor(バロー) 守山小島店

    1587m(20分)

  • ゲンキー小島店の画像

    ドラッグストア

    ゲンキー小島店

    1609m(21分)

  • カネスエ守山店の画像

    スーパー

    カネスエ守山店

    1635m(21分)

  • 守山警察署 玉津警察官駐在所の画像

    警察

    守山警察署 玉津警察官駐在所

    1703m(22分)

支払いシミュレーション

月々の支払額

※実際の金額と異なる場合があります。

購入希望物件価格
万円
頭金
万円
金利
%
返済額(ボーナス1回分)
万円
返済期間

※ボーナスは自動で年2回分で計算されます。

近隣の物件

  1. 守山市吉身6丁目 新築戸建て

    守山市吉身6丁目

    3LDK (117.58㎡)

    7,000万円

  2. 守山市古高町 中古戸建て

    守山市古高町

    4LDK (122.55㎡)

    2,880万円

  3. 守山市播磨田町 新築戸建て

    守山市播磨田町

    4LDK (111.36㎡)

    5,180万円

  4. 守山市今宿2丁目2号棟 新築戸建て

    守山市今宿2丁目

    3SLDK (93.44㎡)

    3,998万円

よく見られている物件

  1. 守山市吉身6丁目 新築戸建て

    守山市吉身6丁目

    3LDK (117.58㎡)

    7,000万円

  2. 守山市今市町 リフォーム済中古戸建て

    守山市今市町

    4LDK (114.82㎡)

    2,299万円

  3. 守山市今宿4丁目 新築戸建て

    守山市今宿4丁目

    4LDK (110.13㎡)

    5,298万円

  4. 野洲市比留田 中古戸建て

    野洲市比留田

    9SDK (187.92㎡)

    1,195万円

守山市今市町 中古戸建て

守山市今市町 中古戸建て

2,580万円

-

5LDK(134.14㎡)

お気軽にお問い合わせください

LINEからお問い合わせ 無料お問い合わせ

株式会社HOUSE GATE

077-599-1865

9:00~18:00

(休:毎週水曜日)