野洲市野洲 新築戸建て

2,580万円

滋賀県野洲市野洲

東海道本線「野洲」駅徒歩16分

価格
2,580万円
間取り/建物面積
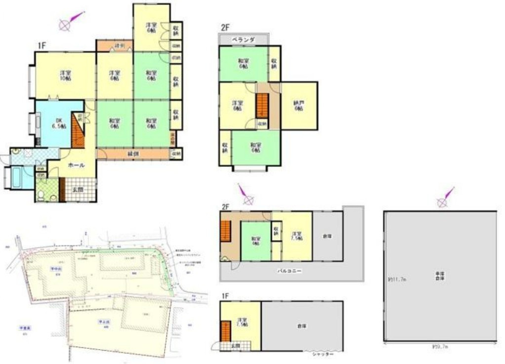
3LDK/92.03㎡
所在地
滋賀県野洲市野洲
築年
2024年7月(新築)
駐車
交通

東海道本線野洲」駅 徒歩16分

野洲市野洲 新築戸建ての基本情報

物件名
野洲市野洲 新築戸建て
価格
2,580万円
建物面積
92.03㎡
土地面積
29.17坪(96.46㎡)
築年月
2024年7月(新築)
総戸数
-
所在地
滋賀県野洲市野洲
交通

東海道本線野洲」駅 徒歩16分

野洲市野洲 新築戸建ての詳細情報

設備条件
設備(その他)
    -
駐車場/月額
有/-
土地権利
所有権
国土法届出
不要
用途地域
第一種住居
取引態様
仲介
引渡し
相談

野洲市野洲 新築戸建てで募集中の物件

  1. 27.83坪 (92.03㎡)

    2,580万円(92.71万円/坪)

周辺施設

  • ファミリーマート 野洲川橋店の画像

    コンビニエンスストア

    ファミリーマート 野洲川橋店

    277m(4分)

  • ウエルシア野洲市三宅店の画像

    ドラッグストア

    ウエルシア野洲市三宅店

    631m(8分)

  • セブンイレブン 野洲行畑1丁目店の画像

    コンビニエンスストア

    セブンイレブン 野洲行畑1丁目店

    753m(10分)

  • ローソン 野洲市三宅店の画像

    コンビニエンスストア

    ローソン 野洲市三宅店

    906m(12分)

  • 野洲市立野洲幼稚園の画像

    幼稚園

    野洲市立野洲幼稚園

    991m(13分)

  • 野洲郵便局の画像

    郵便局

    野洲郵便局

    1075m(14分)

  • 野洲小学校の画像

    小学校

    野洲小学校

    1090m(14分)

  • 野洲病院の画像

    総合病院

    野洲病院

    1134m(15分)

  • JAレーク滋賀 おうみんち 野洲店の画像

    スーパー

    JAレーク滋賀 おうみんち 野洲店

    1137m(15分)

  • 西友 野洲店の画像

    スーパー

    西友 野洲店

    1190m(15分)

  • 滋賀銀行野洲支店の画像

    銀行

    滋賀銀行野洲支店

    1267m(16分)

  • 野洲市役所の画像

    市役所・区役所

    野洲市役所

    1432m(18分)

  • アル・プラザ野洲の画像

    スーパー

    アル・プラザ野洲

    1507m(19分)

  • サンドラッグ 野洲店の画像

    ドラッグストア

    サンドラッグ 野洲店

    1510m(19分)

  • クスリのアオキ野洲薬局の画像

    ドラッグストア

    クスリのアオキ野洲薬局

    1524m(20分)

  • 野洲第3保育園の画像

    保育園

    野洲第3保育園

    1619m(21分)

  • 関西みらい銀行 野洲支店の画像

    銀行

    関西みらい銀行 野洲支店

    1685m(22分)

  • すぎやま内科の画像

    総合病院

    すぎやま内科

    1710m(22分)

  • しみんふくし保育の家北野の画像

    保育園

    しみんふくし保育の家北野

    1884m(24分)

  • 野洲市立野洲中学校の画像

    中学校

    野洲市立野洲中学校

    2789m(35分)

近隣の物件

  1. 野洲市久野部

    4LDK (91.49㎡)

    3,398万円

  2. 野洲市比留田

    9SDK (187.92㎡)

    1,195万円

  3. 野洲市久野部

    4LDK (87.98㎡)

    3,398万円

  4. 野洲市上屋

    3SLDK (145.74㎡)

    3,980万円

野洲市野洲 新築戸建て

お気軽にお問い合わせください

LINEからお問い合わせ 無料お問い合わせ

株式会社HOUSE GATE

077-599-1865

9:00~18:00

(休:毎週水曜日)