栗東市御園 中古戸建て

2,499万円

滋賀県栗東市御園

草津線「石部」駅徒歩57分

草津線「甲西」駅徒歩70分

草津線「手原」駅徒歩79分

価格
2,499万円
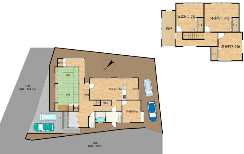
間取り
7DK
土地面積
330.96㎡
所在地
滋賀県栗東市御園
交通

草津線石部」駅 徒歩57分

草津線甲西」駅 徒歩70分

草津線手原」駅 徒歩79分

建物面積
199.34㎡
築年月
1976年11月(築49年)

物件の特徴

  • バストイレ別

  • 室内洗濯機置場

セールスポイント

こだわりポイント満載の栗東市御園 中古戸建て。
通学区域の小学校は栗東市立金勝小学校徒歩15分。
建物面積が199.34平米以上ある物件でゆったりと生活したい方にいかがでしょうか。
地域に特化した当社では、栗東市の不動産情報を豊富に取り扱っております。
新天地で新たな生活をお考えなら、お気軽にご連絡ください。

ポイント

バス トイレ別 角地 土地100坪以上 洗面台 駐車2台可

担当者のコメント

中村 宇尋

【守山市・野洲市の不動産を購入/売却するなら 株式会社HOUSE GATEへ】
お住まいのご購入は、お客様にとって大きな人生の節目となる大切な出来事です。安心・安全な不動産取引を最後まで丁寧にサポートいたします。

基本情報

販売戸数
-
総戸数
-
間取り / 詳細
7DK
向き
-
建物面積(坪数)
199.34㎡(60.3坪)
土地面積(坪数)
330.96㎡(100.11坪)
建ぺい率 /
容積率
70%/200%
築年月
1976年11月(築49年)
駐車場 /
月額料金
有 -
土地権利
所有権
土地
(敷金 / 保証金)
- / -
建物構造
木造 / 2階建
傾斜地部分面積
-
路地状敷地
-
私道負担面積
-
セットバック
無 記載なし
高圧線下面積
-
施工会社
-
用途地域
無指定
地目 / 地勢
- / -
接道状況
角地(北東 公道 4.7m)(北西 公道 5.0m)
国土法届出要否
不要
都市計画
市街化調整区域
総区画数 /
販売区画数
-/-
現況
空家
その他
法令上の制限
-
取引態様
仲介
引渡し
相談
リフォーム
    2026年4月
    キッチン 浴室 トイレ 壁 床 ◎洗面台交換 ◎耐震補強工事 ◎防蟻工事 ◎畳表替え ◎建具全交換
取引条件の
有効期限
2026年02月02日

設備条件

設備条件
  • 室内洗濯機置場 / プロパンガス / 公営水道 / 公共下水 / 駐車2台可 / バス・トイレ別 / 洗面台
設備(その他)
    -

その他

物件番号
99831860
管理コード
-
建築確認番号
-
情報更新日
2026年01月19日
次回更新予定日
2026年02月02日
取扱会社
  • 株式会社HOUSE GATE
  • 滋賀県守山市播磨田町3041 リバティハウス1F
  • TEL:077-599-1865
  • 滋賀県知事 (2) 第3794号
  • (公社)滋賀県宅地建物取引業協会
    (公社)全国宅地建物取引業保証協会
    (公社)近畿地区不動産公正取引協議会
備考
※司法書士売主指定

周辺施設

  • 栗東市立金勝小学校の画像

    小学校

    栗東市立金勝小学校

    1185m(15分)

  • 金勝郵便局の画像

    郵便局

    金勝郵便局

    1202m(16分)

  • 栗東市立 金勝児童館の画像

    保育園

    栗東市立 金勝児童館

    1235m(16分)

  • セブンイレブン 栗東金勝店の画像

    コンビニエンスストア

    セブンイレブン 栗東金勝店

    1250m(16分)

  • 栗東市立金勝幼稚園の画像

    幼稚園

    栗東市立金勝幼稚園

    1279m(16分)

  • フレンドマート 栗東御園店の画像

    スーパー

    フレンドマート 栗東御園店

    1304m(17分)

  • JAレーク滋賀金勝支店の画像

    銀行

    JAレーク滋賀金勝支店

    1371m(18分)

  • 滋賀銀行栗東トレセン前支店の画像

    銀行

    滋賀銀行栗東トレセン前支店

    1417m(18分)

  • ファミリーマート 栗東御園店の画像

    コンビニエンスストア

    ファミリーマート 栗東御園店

    1480m(19分)

  • ローソン 栗東御園店の画像

    コンビニエンスストア

    ローソン 栗東御園店

    1832m(23分)

  • 栗東診療所の画像

    総合病院

    栗東診療所

    2255m(29分)

  • 金勝第2保育園の画像

    保育園

    金勝第2保育園

    2522m(32分)

  • ふれあい診療所の画像

    総合病院

    ふれあい診療所

    3775m(48分)

  • 栗東市立図書館の画像

    図書館

    栗東市立図書館

    4264m(54分)

  • STAR(スター) 安養寺店の画像

    スーパー

    STAR(スター) 安養寺店

    4600m(58分)

  • ドラッグユタカ 栗東安養寺店の画像

    ドラッグストア

    ドラッグユタカ 栗東安養寺店

    4807m(61分)

  • 栗東郵便局の画像

    郵便局

    栗東郵便局

    4876m(61分)

  • ウエルシア栗東手原店の画像

    ドラッグストア

    ウエルシア栗東手原店

    4998m(63分)

  • 栗東市役所の画像

    市役所・区役所

    栗東市役所

    5257m(66分)

  • 栗東市立栗東中学校の画像

    中学校

    栗東市立栗東中学校

    5367m(68分)

支払いシミュレーション

月々の支払額
9.6
購入希望物件価格
万円
頭金
万円
金利
%
返済額(ボーナス1回分)
万円
返済期間

※ボーナスは自動で年2回分で計算されます。

近隣の物件

  1. 栗東市上砥山 中古戸建て

    栗東市上砥山

    10SLDK (186.42㎡)

    880万円

  2. 栗東市大橋4丁目2号棟 新築戸建て

    栗東市大橋4丁目

    4LDK (104.14㎡)

    3,990万円

  3. 栗東市大橋4丁目3号棟 新築戸建て

    栗東市大橋4丁目

    4LDK (107.37㎡)

    4,290万円

  4. 栗東市大橋4丁目1号棟 新築戸建て

    栗東市大橋4丁目

    4LDK (103.91㎡)

    3,690万円

栗東市御園 中古戸建て

栗東市御園 中古戸建て

2,499万円

-

7DK(199.34㎡)

お気軽にお問い合わせください

LINEからお問い合わせ 無料お問い合わせ

株式会社HOUSE GATE

077-599-1865

9:00~18:00

(休:毎週水曜日)